| Specyfikacje | Jednostki | HB-3/1 | HB-9/3 |
| Zasilanie | 220-240/1/50 | 380-415/3/50 | |
| Moc grzałki pomocniczej | kW | 3 | 9 |
| Maksymalne zużycie mocy | kW | 3.2 | 9.2 |
| Maksymalny prąd wejściowy | A | 15.8 | 16.2 |
| Ochrona przed porażeniem elektrycznym | I | I | |
| Klasa IP | IPX1 | IPX1 | |
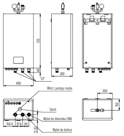
| Przyłącze wodne | cal | G1 | G1 |
| Straty ciśnienia | kPa | 10 | 10 |
| Ciśnienie wody min./maks | MPa | 0.1/0.3 | 0.1/0.3 |
| Poziom ciśnienia akustycznego | dB(A) | 35 | 35 |
| Wymiary (D×S×W) | mm | 400×280×720 | 400×280×720 |
| Wymiary w opakowaniu (D×S×W) | mm | 460×355×862 | 460×355×862 |
| Waga netto | kg | 31 | 33 |
| Waga brutto | kg | 34 | 36 |
| Naczynie wzbiorcze | L | 6 | 6 |
| Bramka internetowa | R485 | R485 |
